Недвижимость Квартиры / 3-к квартира, 80 м², 2/12 эт.
Описание
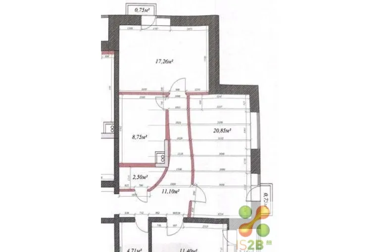
Продаётся трёхкомнатная квартира с великолепной планировкой, 2 изолированные спальни и совмещённая кухня - гостиная .Высокий второй этаж на уловные 3-го(дом стоит на холме).В квартире 4 окна( на две стороны), два французских балкона, лоджия , 2 санузла и постирочная. Находится над нежилым помещением ( клиника на 1м этаже) и имеет больше возможностей в плане перепланировки.До метро пешком 6 минут, можно за 15 минут дойти пешком до парка Сокольники, дом новый, 2010 года постройки, с охраной и имеет отдельную территорию, консьерж, подземный паркинг, шлагбаум, эффектная входная группа.чистовая отделка, сантехника, продаётся без мебели. Пишите, показ оперативный!Агентские услуги не интересуют| Сведения о недвижимости | |
|---|---|
| ID | 823 |
| Комнат в квартире | 3 |
| Площадь, кв.м. | 80 |
| Площадь кухни, кв.м. | 21 |
| Этаж | 2 |
| Этажность | 12 |
| Материал стен | кирпичный |
| Стоимость | 23 800 000 руб. |

Темногрудов Евгений
Стоимость - 23 800 000 руб.
Цена кв.м. - 297 500 руб.
Сумма переплаты: 0
Сумма общая: 0
Ежемесячный платеж: 0





