Описание
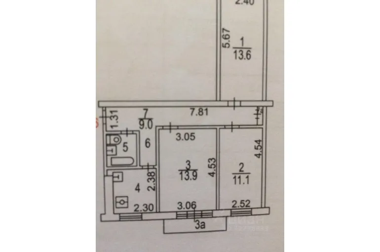
Лот № 3984 1 взрослый собственник, без обременений, первичные документы, договор мены с Департаментом городского имущества г. Москва. Продается 3-комн. квартира в историческом районе Москвы, рядом с Донским монастырем. Район с максимально развитой инфраструктурой торговый центр Гагаринский, магазин Ашан, скверы для прогулок с качелями спортивными и детскими площадками . школа, гимназия, детский сад за домом, 4 Городская клиническая больница с хорошей поликлиникой. С хорошей транспортной доступностью, пешая доступность от трех станций метро Шаболовская, Ленинский проспект и Тульская, 5 трамвайных маршрутов. В квартире установлены кондиционеры в каждой комнате, комнаты изолированные. Застекленный балкон Уважаемые риэлторы квартиру продаем сами, помощь в продаже не требуется, звонить только при наличии потенциального покупателя,торг после показа.| Сведения о недвижимости | |
|---|---|
| ID | 3984 |
| Комнат в квартире | 3 |
| Площадь, кв.м. | 60 |
| Жилая площадь | 40 |
| Площадь кухни, кв.м. | 5 |
| Этаж | 2 |
| Этажность | 5 |
| Материал стен | другой |
| Стоимость | 18 350 000 руб. |

Темногрудов Евгений
Стоимость - 18 350 000 руб.
Цена кв.м. - 305 833 руб.
Сумма переплаты: 0
Сумма общая: 0
Ежемесячный платеж: 0











