Описание
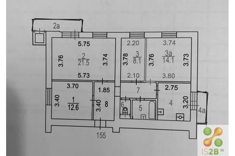
Лот № 2506 Продается квартира в сталинском доме. Тихий, зеленый двор. Закрытая территория, что исключает проблемы с парковкой. Развитая инфраструктура района, в шаговой доступности супермаркеты, поликлиника, школы и детские сады. Удобный выезд на ТТК и Ленинградский проспект. В пешей доступности станции метро "Динамо" и "Беговая". В квартире потолки 3,2 м. Планировка квартиры включает в себя 4 изолированные комнаты, кухня, раздельный с/у, 2 застекленных балкона (1 в кухне, 1 в гостиной). Все окна квартиры (кроме кухни) выходят в тихий двор. Из окна кухни открывается красивый вид на Московский Ипподром. 1 взрослый собственник.| Сведения о недвижимости | |
|---|---|
| ID | 2506 |
| Комнат в квартире | 4 |
| Площадь, кв.м. | 80.5 |
| Жилая площадь | 56.3 |
| Площадь кухни, кв.м. | 8.8 |
| Этаж | 6 |
| Этажность | 7 |
| Материал стен | кирпичный |
| Стоимость | 19 500 000 руб. |

Перстнев Александр
Стоимость - 19 500 000 руб.
Цена кв.м. - 242 236 руб.
Сумма переплаты: 0
Сумма общая: 0
Ежемесячный платеж: 0


















