1-комнатная квартира: Москва, Пресненская набережная, 12 (54.2 м²)
Описание
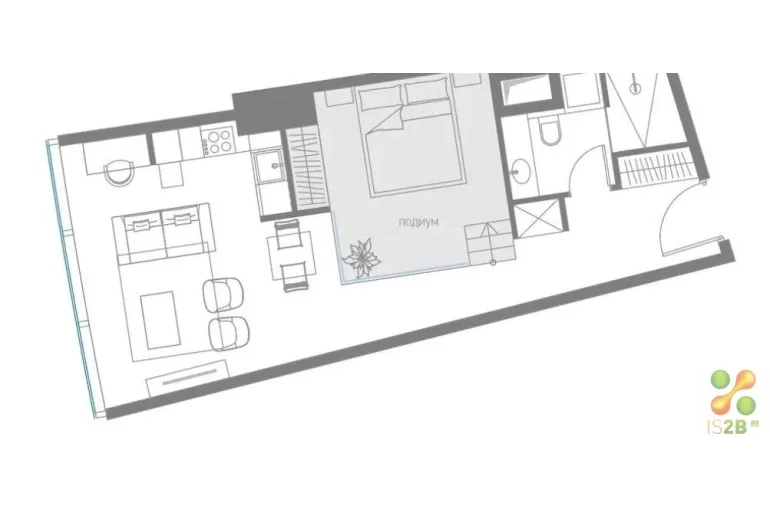
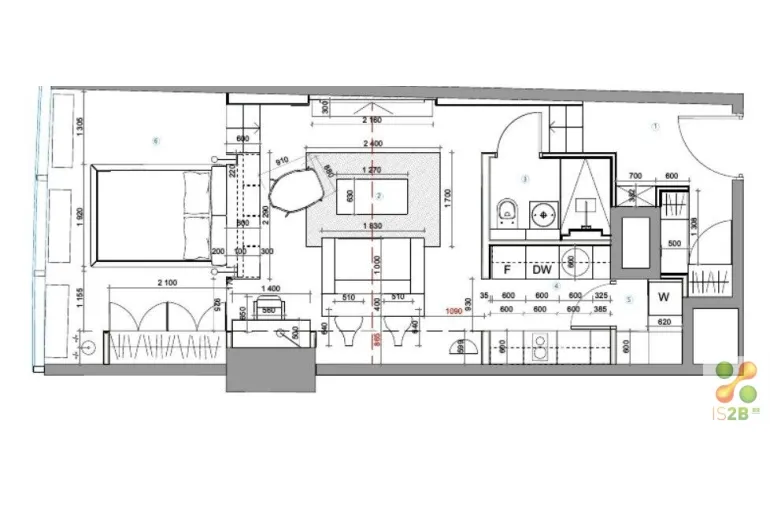
Лот № 2363 Cобственник. Лучший видовой апартамент небольшой площади в Сити. Площадь 54,2 кв.м. 80й этаж. Юго-западная сторона - вид на Воробьевы горы, МГУ, Лужники, парк Фили, Крылатское. Панорамное остекление шириной 5 метров. Самый высокий этаж с блоками небольшой площади. Свободная планировка, без колонн и перегородок посередине - возможно реализовать любую планировку помещения. В объявлении опубликовал несколько рендеров из дизайн-проекта, который планировали реализовать в данном апартаменте. В помещение заведены все коммуникации - вода, канализация, приточно-вытяжная система вентиляции с подогревом и охлаждением, а также очисткой и увлажнением воздуха, кондиционирование. Возможность организовать кухню и санузел внутри помещения. Быстрая сделка. Договор купли-продажи. При желании можем обсудить выполнение отделки, при согласовании проекта с покупателем, за дополнительную оплату.| Сведения о недвижимости | |
|---|---|
| ID | 2363 |
| Комнат в квартире | 1 |
| Площадь, кв.м. | 54.2 |
| Этаж | 80 |
| Этажность | 95 |
| Материал стен | другой |
| Стоимость | 33 000 000 руб. |

Станислава Макарова
Стоимость - 33 000 000 руб.
Цена кв.м. - 608 856 руб.
Сумма переплаты: 0
Сумма общая: 0
Ежемесячный платеж: 0















