3-к квартира, 57 м², 5/17 эт.
Описание
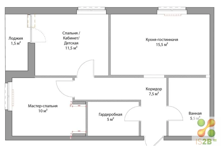
Апартамент с 2 спальнями и кухней-гостиной в ЖК Смольная 44ПРОСЬБА ПИСАТЬ В ЧАТ- новый монолитный ЖК в 5-ти минутах ходьбы от метро Беломорская- высота потолков 3,1м- дизайнерский ремонт- кухня-гостиная (16 м2)- две изолированные спальни (11,5 и 10 м2)- просторная ванная комната (5,5 м2)- гардеробная комната (5 м2)- балкон-лоджия (1,5 м2)- 4 окна (вид на ул. Смольная и ФМС)- общая площадь 57 м2- квартира полностью меблирована, оснащена всей техникой и готова к проживанию (никто до этого не проживал)- кухня со встроенной техникой Bosch (холодильник, посудомоечная машина, плита и духовка)- теплые полы (ванная, коридор и часть кухни)- Потолки натяжные с точечными светильниками- Пол керамогранит (коридор, гардеробная и ванная), паркетная доска (кухня-гостиная) и ламинат (обе спальни)- кондиционеры в каждой комнате (panasonic)Въезд на территорию через шлагбаум. Район тихий и спокойный, всегда можно найти парковку. Рядом несколько парков: парк Дружба, парк Речного вокзала и живописная зона Химкинского водохранилищаСвободная продажа, один собственник. Основание права собственности - договор участия в долевом строительстве. Показы по договоренности| Сведения о недвижимости | |
|---|---|
| ID | 1156 |
| Комнат в квартире | 3 |
| Площадь, кв.м. | 57 |
| Жилая площадь | 22 |
| Площадь кухни, кв.м. | 16 |
| Этаж | 5 |
| Этажность | 17 |
| Материал стен | монолит |
| Стоимость | 14 500 000 руб. |

Ильичев Антон
Стоимость - 14 500 000 руб.
Цена кв.м. - 254 386 руб.
Сумма переплаты: 0
Сумма общая: 0
Ежемесячный платеж: 0































