Продам трехкомнатную новостройку 121.0 м² этаж 6/19 город Москва метро Тульская
Описание
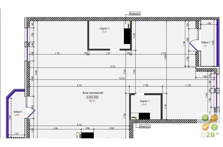
Лот № 1983 3-х комнатная квартира. С готовым ДИЗАЙН-ПРОЕКТОМ. (фото в описании) Светлая квартира площадью 122 м2 на 6 этаже из 19-ти этажного дома переменной этажности с замечательной удобной планировкой. Высота потолков 3.10 м. ЖК ДОНСКОЙ ОЛИМП это современный жилой комплекс бизнес-класса в престижном районе столицы. Создан для тех, кто любит комфорт, ценит время и хочет наслаждаться всеми преимуществами городской жизни Москвы. В пешей доступности метро Тульская и Шаболовская Закрытая охраняемая территория, видеонаблюдение.| Сведения о недвижимости | |
|---|---|
| ID | 1983 |
| Площадь, кв.м. | 121 |
| Комнат в квартире | 3 |
| Этаж | 6 |
| Этажность | 19 |
| Материал стен | другой |
| Стоимость | 41 400 000 руб. |

Станислава Макарова
Стоимость - 41 400 000 руб.
Цена кв.м. - 342 149 руб.
Сумма переплаты: 0
Сумма общая: 0
Ежемесячный платеж: 0





