Недвижимость Квартиры / 2-к квартира, 57.7 м², 17/18 эт.
Описание
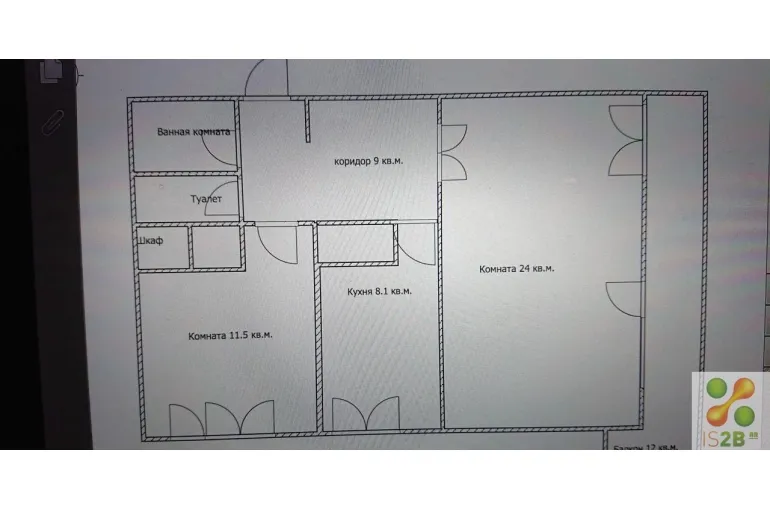
Продается светлая, уютная 2 х комнатная квартира общей площадью 57.7 кв.м. в доме серии Лебедь на 17 этаже (18 этаж технический).Удобная планировка, 2 изолированные комнаты 24 и 11.5 кв.м., просторный холл 9 кв.м., кухня 8.1. Вся мебель и техника остается, квартира полностью готова для проживания.Большой балкон на всю спальню, с панорамным видом на Москву. Санузел раздельный, перепланировок нет. Просторный общий коридор где расположены шкафы для хранения обуви.Дружелюбные соседи.Лифты пассажирский и грузовой.Входная группа с консьержем 24/7 плюс видеонаблюдение в подъезде и на территории парковки. Дом расположен в тихом месте, удобное транспортное сообщение. Развитая инфраструктура: школы, детские сады, поликлиники детская и взрослая, магазины, гаражный комплекс (возможна аренда или покупка), парк в пешей доступности.Один взрослый собственник, прописанных нет.Ограничение прав и обременение, долги ЖКХ, электроэнергии отсутствуют.Документы в наличии. Полная стоимость в договоре,быстрый выход на сделку.При выходе на сделку в течении трех дней после просмотра стоимость квартиры 10 600 000 р.| Сведения о недвижимости | |
|---|---|
| ID | 639 |
| Комнат в квартире | 2 |
| Площадь, кв.м. | 57 |
| Жилая площадь | 35 |
| Площадь кухни, кв.м. | 8 |
| Этаж | 17 |
| Этажность | 18 |
| Материал стен | панельный |
| Стоимость | 10 900 000 руб. |

Ильичев Антон
Стоимость - 10 900 000 руб.
Цена кв.м. - 191 228 руб.
Сумма переплаты: 0
Сумма общая: 0
Ежемесячный платеж: 0



















