Недвижимость Квартиры / 2-к квартира, 54 м², 2/9 эт.
Описание
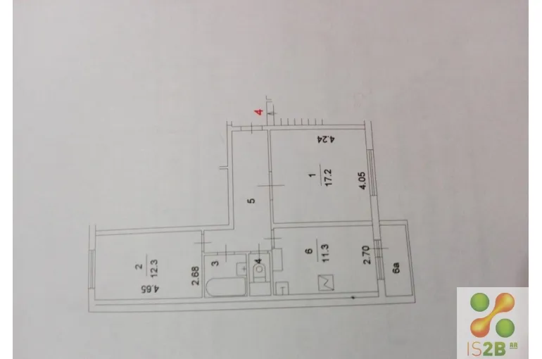
Продается двухкомнатная квартира распашонка в экологически чистом районе Москвы, ЮЗАО, Южное Бутово. Более 5 лет в собственности, два взрослых собственника (первые владельцы) - приватизация, альтернатива, быстрый выход на сделку, все документы готовы. Оперативный показ.Общая площадь 53,6 кв.м., большая кухня 11,3 кв.м., комнаты 17,2 и 12,3 кв.м., раздельный санузел, большая застекленная лоджия.Квартира в хорошем состоянии, заменена электропроводка, на полу в комнатах - ламинат, в коридоре, кухне и санузле - плитка, окна ПВХ, входная металлическая дверь. В доме интеллигентные соседи, чистый подъезд с камерами видеонаблюдения, пассажирский лифт, мусоропровод.Развитая инфраструктура: удобная парковка со свободными местами, во дворе обустроена детская площадка, рядом 2 детских сада, 3 школы, поликлиника, ТЦ Бутово Молл, сетевые супермаркеты, бассейн и фитнес клубы, православный храм, парк Южное Бутово, р.Корюшка и Черневские пруды с зонами отдыха, 7 минут ходьбы до станция метро Бунинская аллея, удобный выезд на Калужское шоссе и МКАД.| Сведения о недвижимости | |
|---|---|
| ID | 624 |
| Комнат в квартире | 2 |
| Площадь, кв.м. | 54 |
| Жилая площадь | 29 |
| Площадь кухни, кв.м. | 11 |
| Этаж | 2 |
| Этажность | 9 |
| Материал стен | панельный |
| Стоимость | 8 400 000 руб. |

Ильичев Антон
Стоимость - 8 400 000 руб.
Цена кв.м. - 155 556 руб.
Сумма переплаты: 0
Сумма общая: 0
Ежемесячный платеж: 0

















