Недвижимость Квартиры / 2-комнатные-к квартира, 58.2 м², 5/16 эт.
Описание
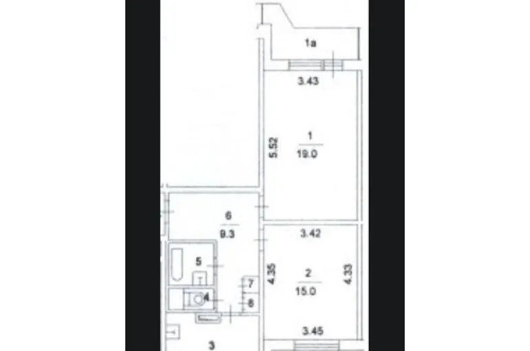
Продаётся двухкомнатная квартира-распашонка, дом серии П-44. Чистый подъезд, консьерж. Хорошее жилое состояние квартиры. Первая береговая линия, через дорогу - шикарный парк с Москва-рекой, спортивными и детскими площадками. Рядом вся инфраструктура: магазины, школы, детсады, поликлиники, тц, спорткомплекс Янтарь, метро Строгино. До ближайшей автобусной остановки - 1 минута ходьбы. Свободная продажа. Собственность с 2013 года| Сведения о недвижимости | |
|---|---|
| ID | 581 |
| Комнат в квартире | 2 |
| Площадь, кв.м. | 58 |
| Жилая площадь | 34 |
| Площадь кухни, кв.м. | 10 |
| Этаж | 5 |
| Этажность | 16 |
| Материал стен | панельный |
| Стоимость | 12 300 000 руб. |

Ильичев Антон
Стоимость - 12 300 000 руб.
Цена кв.м. - 212 069 руб.
Сумма переплаты: 0
Сумма общая: 0
Ежемесячный платеж: 0













