4-комн. квартира, 117 м²
Описание
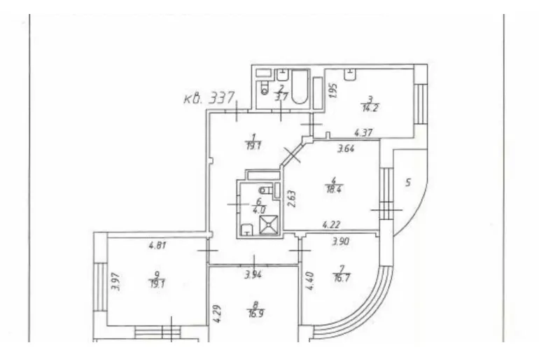
Я-ВЛАДЕЛЕЦ.С риэлторами встречаюсь только в присутствии потенциальных покупателей! Никто не прописан,свободная продажа. Видовая квартира на 3 стороны. Под окнами коттеджная застройка.Стяжка полов уже сделана. Гидроизоляция выполнена по всей квартире,электрика проведена, батареи подключены. Входная дверь поменяна.Московская прописка.| Сведения о недвижимости | |
|---|---|
| ID | 396 |
| Комнат в квартире | 4 |
| Площадь, кв.м. | 117 |
| Жилая площадь | 72 |
| Площадь кухни, кв.м. | 15 |
| Этаж | 5 |
| Этажность | 21 |
| Материал стен | монолит |
| Стоимость | 8 987 000 руб. |
Стоимость - 8 987 000 руб.
Цена кв.м. - 76 812 руб.
Сумма переплаты: 0
Сумма общая: 0
Ежемесячный платеж: 0
























