1-к кв. Москва Шарикоподшипниковская ул., 12 (38.7 м²)
Описание
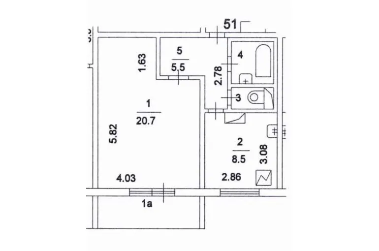
Лот № 3720 В квартире произведён капитальный ремонт с заменой всех коммуникаций и электропроводки. Использованы качественные отделочные материалы (стены окрашены, итальянский керамогранит и плитка, немецкие смесители и сантехника, встроенные шкафы). Кухня оснащена всем необходимым: посудомоечная машина, встроенная микроволновая печь, вся техника Siemens (Германия). В кухне, коридоре, ванной комнате и санузле установлен тёплый пол. Просторная гардеробная комната. Кондиционер. Охранная сигнализация. В пешей доступности несколько станций метро (Дубровка, Пролетарская, Автозаводская) и МЦК (Дубровка, Угрешская), несколько выездов на ТТК, 10 минут на авто до центра, 15 минут пешком до набережной Москвы-реки с видом на Дом музыки, Высотку на Котельнической набережной. Впечатляющий панорамный вид на город. Под окнами зелёный сквер с фонтаном. Интеллигентные соседи. Один совершеннолетний собственник, полная стоимость в договоре, подходит для ипотеки. Альтернатива подобрана.| Сведения о недвижимости | |
|---|---|
| ID | 3720 |
| Комнат в квартире | 1 |
| Площадь, кв.м. | 38 |
| Жилая площадь | 20 |
| Площадь кухни, кв.м. | 8 |
| Этаж | 14 |
| Этажность | 14 |
| Материал стен | панельный |
| Стоимость | 13 300 000 руб. |

Мударисова Алина
Стоимость - 13 300 000 руб.
Цена кв.м. - 350 000 руб.
Сумма переплаты: 0
Сумма общая: 0
Ежемесячный платеж: 0

















