Хорошая 4х комнатная квартира
Описание
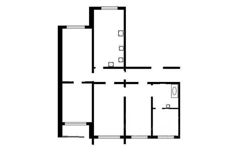
Лот № 2821 Продаю 4х комнатную квартиру 110 кв.м . Жилая 67.8 кв.м. Комнаты 26.1-17.3-14.2-10.2 кв.м. Два санузла совмещенный 3.5кв.м гостевой 1.4кв.м. Коридор 19.3 кв.м. Кладовка 2.2кв.м. Лоджия. Хорошие соседи, ухоженный поезд с консьержем. Окна квартиры выходят по обе стороны дома во двор и на парк прилегающий к Москва реке в котором имеются масса детских площадок, велодорожки, тренажерные площадки, велотрек и спортивная трасса для занятий биатлоном. В шаговой доступности торговый центр МАРИ с множеством магазинов и развлекательной инфраструктурой торгового центра (Кинотеатр и т.д). Школа и детский сад находятся в 250 м от дома( не нужно переходить проезжих дорог что немаловажно при самостоятельном передвижении ребенка до школы и обратно). Цена 19 мл.рублей. Собственник.| Сведения о недвижимости | |
|---|---|
| ID | 2821 | 
| Комнат в квартире | 4 | 
| Площадь, кв.м. | 110 | 
| Жилая площадь | 67.8 | 
| Площадь кухни, кв.м. | 12.5 | 
| Этаж | 16 | 
| Этажность | 17 | 
| Материал стен | панельный | 
| Стоимость | 19 000 000 руб. | 

Темногрудов Евгений
Стоимость - 19 000 000 руб.
Цена кв.м. - 172 727 руб.
 Сумма переплаты:  0
		 Сумма общая:  0
		 Ежемесячный платеж:  0
        



























