4-к квартира, 120 м², 7/16 эт.
Описание
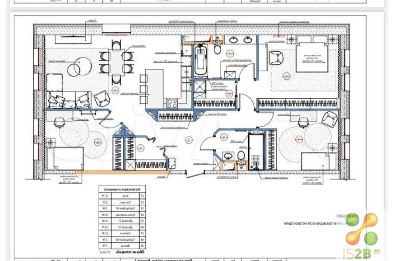
Лот № 2383 Продаётся квартира евро4 (3 изолированные спальни). Мастер-спальня с гардеробной и сан. узлом.Новый ремонт 2020 год с самой современной техникой и инженерией (канальное кондиционерование, трубы рихау).Все комнаты оборудованы встроенными гардеробными шкафами. Дом клубного типа, 46 квартир, 3 квартиры на этаже. Новостройка, 2019 год постройки, закрытая территория, школа и сад во дворе. На первом этаже дома пиццерия и детское кафе. Рядом много объектов инфраструктуры.| Сведения о недвижимости | |
|---|---|
| ID | 2383 |
| Комнат в квартире | 4 |
| Площадь, кв.м. | 120 |
| Этаж | 7 |
| Этажность | 16 |
| Материал стен | монолит |
| Стоимость | 37 400 000 руб. |

Темногрудов Евгений
Стоимость - 37 400 000 руб.
Цена кв.м. - 311 667 руб.
Сумма переплаты: 0
Сумма общая: 0
Ежемесячный платеж: 0

















