Описание
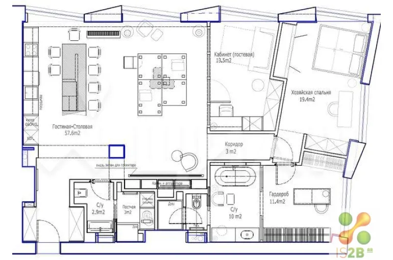
Лот № 2261 Новая квартира с панорамным видом на Москва реку и на высотку. Дорогой современный ремонт, техника Mile. 2 машиноместа в подземном паркинге включены в стоимость.| Сведения о недвижимости | |
|---|---|
| ID | 2261 |
| Комнат в квартире | 3 |
| Площадь, кв.м. | 126 |
| Этаж | 4 |
| Этажность | 4 |
| Материал стен | монолит |
| Стоимость | 103 000 000 руб. |

Перстнев Александр
Стоимость - 103 000 000 руб.
Цена кв.м. - 817 460 руб.
Сумма переплаты: 0
Сумма общая: 0
Ежемесячный платеж: 0























