3-комн. квартира, 82 м²
Описание
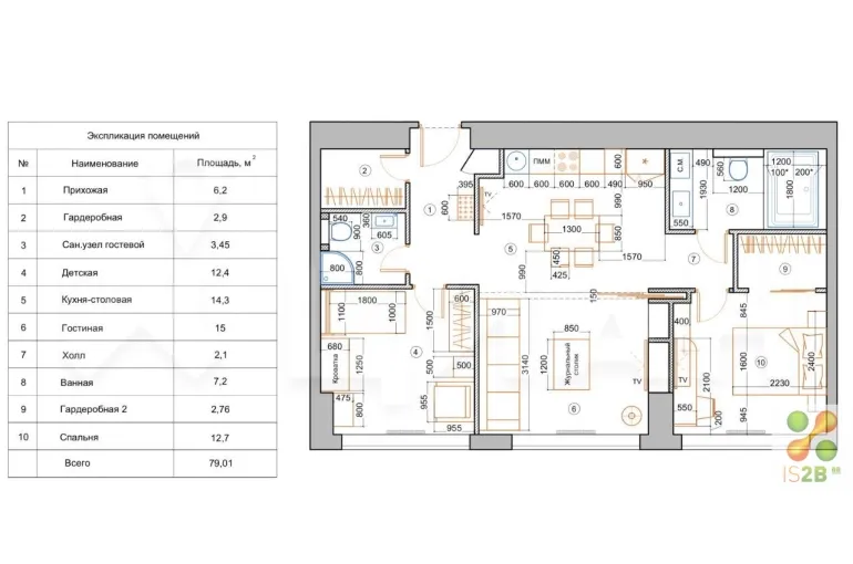
Лот № 1990 Продается трехкомнатная квартира в самом современном и технологичном доме района(Инновации года в рамках Urban Awards 2013). В доме подземный паркинг, охрана, двор без машин, фитнес клуб с двумя бассейнами и кафе. В процессе запуска интеллектуальная система сервисов дома через приложение Capital Group и торговый центр на первых трех этажах здания. Высочайшее качество строительства, лифты Sigma и удобное расположение: в пяти минутах пешком детский сад, школа, парк Ходынское Поле, крупнейший в Европе торговый центр Авиапарк и дворец спорта Мегаспорт. Удобные съезды на ТТК и Ленинградское шоссе, метро ЦСКА 7 минут пешком, метро Динамо 15 мин пешком. Обратите внимание, что квартира расположена во втором корпусе со всеми его преимуществами перед первым. Соседи со всех сторон ремонты сделали- тихо. В квартире сделан дизайнерский ремонт с использованием дорогих материалов. Система кондиционирования премиальной серии Daikin c управлением через интернет. Два полноценных сан узла, две гардеробные с мебелью на заказ. Теплые полы, все трубы Rehau, бойлер, кухня "Стильные Кухни" с фурнитурой Blum. За дополнительную плату парковочное место на минус первом этаже. Два взрослых собственника, все документы готовы к сделке. Агентам просьба не звонить - партнерство не рассматриваю.| Сведения о недвижимости | |
|---|---|
| ID | 1990 |
| Комнат в квартире | 3 |
| Площадь, кв.м. | 82 |
| Жилая площадь | 50 |
| Площадь кухни, кв.м. | 14 |
| Этаж | 10 |
| Этажность | 24 |
| Материал стен | монолит |
| Стоимость | 34 000 000 руб. |

Станислава Макарова
Стоимость - 34 000 000 руб.
Цена кв.м. - 414 634 руб.
Сумма переплаты: 0
Сумма общая: 0
Ежемесячный платеж: 0



















