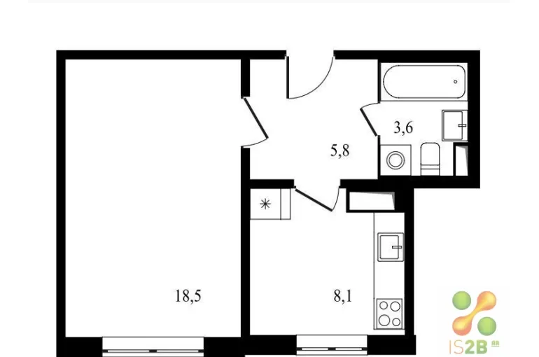
1-к квартира, 35.7 м², 4/24 эт.
Описание
Лот № 1963 продается однокомнатная квартира общей площадью 35, 70 кв.м., рядом м. Семеновская, м. Партизанская , Станция МЦК "Соколиная гора", акт приемки-передачи квартиры подписан, ключи получены, право собственности зарегистрировано, это очень выгодное предложение, так как в I корпусе не осталось ни одной квартиры по аналогичной стоимости (инфа на офиц сайте застройщика), цена ниже, чем у застройщика, ипотека полностью погашена, идет процесс снятия обременения, гарантия на ремонт от застройщика от 1 года до 5 лет.Инфраструктура: Спортивные площадки, Детский сад, Подземная и гостевая парковка.В непосредственной близости от комплекса находится один из самых больших парков в Москве Измайловский. Проект включает в себя создание благоустроенной общественной территории: безопасных детских площадок, зон для прогулок, отдыха и занятий спортом.На благоустроенной придомовой территории с современными спортивными и детскими площадками будет также располагаться отдельно стоящий подземно-наземный паркинг и дошкольное образовательное учреждение. Все квартиры сдаются с современной чистовой отделкой, представленной в двух вариантах: "Мокко" и "Ваниль"; в том числе с монтажом электропроводки, розеток, выключателей и установленной сантехникой.
| Сведения о недвижимости | |
|---|---|
| ID | 1963 |
| Доля в квартире | Нет |
| Статус Недвижимости Авито | Квартира |
| Комнат в квартире | 1 |
| Площадь, кв.м. | 35.7 |
| Площадь кухни, кв.м. | 10.5 |
| Этаж | 4 |
| Этажность | 24 |
| Материал стен | монолит |
| Стоимость | 8 000 000 руб. |




