Описание
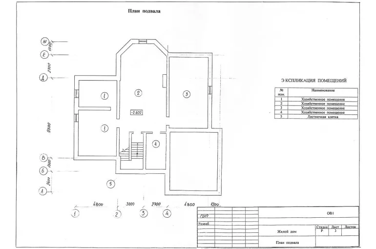
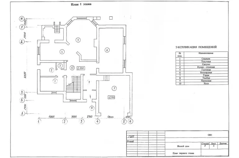
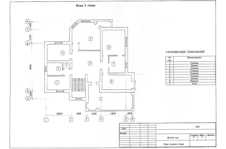
Южное Бутово, Потапово (элитный поселок на территории старой Москвы). Продается дом 544 кв. метра. Участок 937 кв. м сад: растения, освещение, беседка, зона барбекю. Земля в долгосрочной аренде, возможно оформление в собственность. Коммуникации: электричество, водопровод, канализация, газ, телефон, интернет (оптоволокно), спутниковое и эфирное телевидение. В доме четыре уровня, гараж на 2 машины. Цоколь с помещениями различного назначения + три этажа (5 санузлов, 6 спален). 1-й этаж: прихожая, холл, выход в гараж, гардеробная, санузел, гостиная с камином, бильярдная, спальня-кабинет, кухня-столовая с выходом в сад, застекленная терраса, котельная (вход отдельный). 2-й этаж: холл-библиотека, гардеробная, хозяйская спальня + санузел; еще 4 комнаты и 2 санузла, большая терраса-солярий с навесом, балкон. Мансарда: спальня, тренажерный зал, сауна, санузел с постирочной. Поселку более 20 лет, развитая инфраструктура, территория благоустроена.| Сведения о недвижимости | |
|---|---|
| ID | 518 | 
| Площадь, кв.м. | 54.4 | 
| Площадь участка, сот | 0.94 | 
| Этажность | 3 | 
| Материал стен | другой | 
| Стоимость | 52 000 000 руб. | 

Ильичев Антон
Стоимость - 52 000 000 руб.
Цена кв.м. - 955 882 руб.
 Сумма переплаты:  0
		 Сумма общая:  0
		 Ежемесячный платеж:  0
        












